2025/12/06
こんにちは、アスモホームの麻場です。
本日ご紹介させていただく物件は、
「プライムアーバン赤坂」です。

赤坂駅徒歩5分の閑静な住宅街に位置する低層マンションです🎈
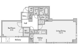
お部屋は52.09㎡の1LDKとなっております。
・リビング

LDは広々12.7畳、南西向き2面採光◎
白を基調とした明るいお部屋です💡
・キッチン

キッチンはグリル付きの3口コンロ🔥
独立タイプ且つ窓がついているので、
居住スペースに煙や臭いが漏れにくいのも
嬉しいポイントです🍆
・水回り

バスルームは1317サイズとなっており、
一般的なものよりもゆとりのある大きさです🎈
三面鏡や浴室乾燥機、温水洗浄便座など
設備も充実しております🌈
・ベッドルーム

ベッドルームにはウォークインクローゼットがあるので
荷物の多い方でも安心です🎈
即入居可能、内見可能ですので
是非お気軽にお問い合わせください🍆
本日ご紹介させていただく物件は、
「プライムアーバン赤坂」です。

赤坂駅徒歩5分の閑静な住宅街に位置する低層マンションです🎈
お部屋は52.09㎡の1LDKとなっております。
・リビング

LDは広々12.7畳、南西向き2面採光◎
白を基調とした明るいお部屋です💡
・キッチン

キッチンはグリル付きの3口コンロ🔥
独立タイプ且つ窓がついているので、
居住スペースに煙や臭いが漏れにくいのも
嬉しいポイントです🍆
・水回り

バスルームは1317サイズとなっており、
一般的なものよりもゆとりのある大きさです🎈
三面鏡や浴室乾燥機、温水洗浄便座など
設備も充実しております🌈
・ベッドルーム

ベッドルームにはウォークインクローゼットがあるので
荷物の多い方でも安心です🎈
即入居可能、内見可能ですので
是非お気軽にお問い合わせください🍆
~物件情報~
・物件名:プライムアーバン赤坂 305号室
・所在地:東京都港区赤坂7丁目6-19
・構造:鉄筋コンクリート造4階建3階部分
・築年月:2002年12月
・専有面積:52.09㎡
・現況:空室
・賃料:268,000円
・管理費:10,000円
・敷金:1ヶ月
・礼金:1.5ヶ月
・契約形態:普通建物賃貸借2年間
・更新料:新賃料の1か月分
・鍵交換費用:36,300円(税込)
・備考
→ペット不可 / 楽器不可 / 事務所不可 / 二人入居可 / ルームシェア不可